咨询电话
13924666952
400-158-1606
 
 qy球友会(中国)系列机械手控制系统开关电源包含单路/双路,50W/100W两款开关电源;制动电阻有120W/200W/300W选择,各功率段产品尺寸及安装方式如下:
开关电源尺寸及安装方式
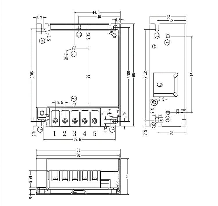
单路开关电源图(50W)

| 安装方式 | 安装位号 | 螺丝规格 | 螺丝长度(max) | 安装扭矩(max) | 
| 螺丝固定 | ①--② ⑦--⑨ | M3 | 5mm | 6.5kgf.cm | 
| ③--⑥ ⑩--⑫ | M3 | 3mm | 7kgf.cm | 
双路开关电源图(100W)

| 安装方式 | 安装位号 | 螺丝规格 | 螺丝长度(max) | 安装扭矩(max) | 
| 螺丝固定 | ①--② ⑦--⑨ | M3 | 5mm | 6.5kgf.cm | 
| ③--⑥ ⑩--⑫ | M3 | 3mm | 7kgf.cm | 
制动电阻尺寸及安装方式
120W制动电阻

| 型号 | 25℃-40℃额定功率(W) | 外形尺寸(mm) | 阻值范围 | ||||||
| 电阻体 | |||||||||
| A±1.0 | B±1.0 | c±1.0 | D±1.0 | E±0.5 | F | G±1.0 | 0.1~20K | ||
| RXLG | 120 | 185 | 170 | 20 | 40 | 5.6 | 45° | 155 | |
| 安装 方式 | 螺丝 规格 | 螺丝 长度(max) | 安装 扭矩(max) | 
| 螺丝 固定 | M5 | 8mm | 7.5kgf.cm | 
200W制动电阻

| 型号 | 25℃-40℃额定功率(W) | 外形尺寸(mm) | 阻值范围 | ||||||
| 电阻体 | |||||||||
| A±1.0 | B±1.0 | C±1.0 | D±1.0 | E±0.5 | F | G±1.0 | 0.1~20K | ||
| RXLG | 200 | 165 | 147 | 30 | 60 | 5.6 | 45° | 119 | |
| 安装方式 | 螺丝规格 | 螺丝 长度(max) | 安装 扭矩(max) | 
| 螺丝固定 | M5 | 8mm | 7.5kgf.cm | 
300W制动电阻(QC-S2E特殊应用)

| 型号 | 25℃-40℃额定功率(W) | 外形尺寸(mm) | 阻值范围 | ||||||
| 电阻体 | |||||||||
| A±1.0 | B±1.0 | c±0.5 | D±0.5 | E±0.5 | F | G±1.0 | 0.1~20K | ||
| RXLG | 300 | 215 | 203 | 30 | 60 | 5.5 | 45° | 175 | |
| 安装 方式 | 螺丝 规格 | 螺丝 长度(max) | 安装 扭矩(max) | 
| 螺丝 固定 | M5 | 8mm | 7.5kgf.cm | 
版权所有 © 深圳市qy球友会(中国)工业控制股份有限公司 未经许可不得复制、转载或摘编,违者必究 版权声明
Copyright © Shenzhen Huacheng Industrial Control Co., Ltd. All Rights Reserved.
网站ICP备案号: 粤ICP备19106162号
技术支持:新新网络